info@immobiliareluxor.it

0422 1522 739

screenshot 2024-08-02 alle 17.39.58
screenshot 2024-08-02 alle 17.39.58

AGENZIA IMMOBILIARE LUXOR di Bizzotto Denis
Viale Manin 12 – 31040 Volpago del Montello (TV)  
info@immobiliareluxor.it - immobiliareluxor@pec.it 
+39 0422 1522 739 
P.iva 03683290260

Terreno Edificabile Residenziale in Vendita ad Arcade - Centro
PTE009
Arcade
Treviso - TV
Italy
Se siete alla ricerca di un terreno edificabile dove realizzare la casa dei vostri sogni e desiderosi di iniziare i lavori sin da subito, l’Agenzia Immobiliare Luxor ha il piacere di proporvi il terreno che stavate cercando!
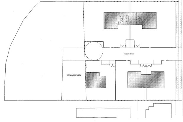
Ubicato nel cuore del centro storico di Arcade, questo splendido lotto residenziale si estende su una superficie totale di ben 2950 mq. Grazie alla sua posizione strategica, potrete godere della tranquillità tipica delle zone residenziali pur rimanendo a pochi passi da tutti i principali servizi come negozi, scuole e aree verdi.
Il piano regolatore consente un intervento diretto per la costruzione di sei villette abbinate dislocate su due livelli fuori terra oppure case singole sviluppabili interamente su un unico piano. Questa flessibilità rappresenta una straordinaria opportunità sia per privati in cerca della loro prima abitazione sia per imprenditori edili pronti a investire nella zona senza necessità di procedurare con operazioni complesse di lottizzazione.
La bellezza naturale circostante arricchisce ulteriormente l’appeal dell'immobile: gli spazi aperti permettono non solo una vita immersa nel verde ma anche possibilità ricreative immediatamente accessibili. Non perdete questa occasione unica!
Visitate oggi stesso www.immobiliareluxor.it o contattateci direttamente per maggiori dettagli. Per garantire massima riservatezza ai nostri clienti, comunichiamo che le informazioni fornite sugli indirizzi non costituiscono identificativi precisi dell’immobile ma sono semplicemente indicazioni generali sulla zona.
Terreno Edificabile Residenziale in Vendita ad Arcade - Centro Terreno Edificabile Residenziale in Vendita ad Arcade - Centro Terreno Edificabile Residenziale in Vendita ad Arcade - Centro Terreno Edificabile Residenziale in Vendita ad Arcade - Centro Terreno Edificabile Residenziale in Vendita ad Arcade - Centro Terreno Edificabile Residenziale in Vendita ad Arcade - Centro Terreno Edificabile Residenziale in Vendita ad Arcade - Centro Terreno Edificabile Residenziale in Vendita ad Arcade - Centro Terreno Edificabile Residenziale in Vendita ad Arcade - Centro Terreno Edificabile Residenziale in Vendita ad Arcade - Centro

Copyright 2022 - Powered by Logos Engineering Srl

Create Website with flazio.com | Free and Easy Website Builder